Buitenstaanplaats
€ 7.500

Neygenbaan 5, 1910 Kampenhout
    • delen

Omschrijving Ref.: 4695017

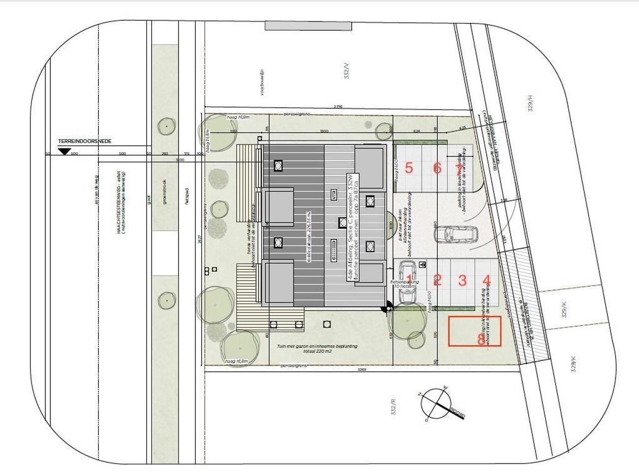
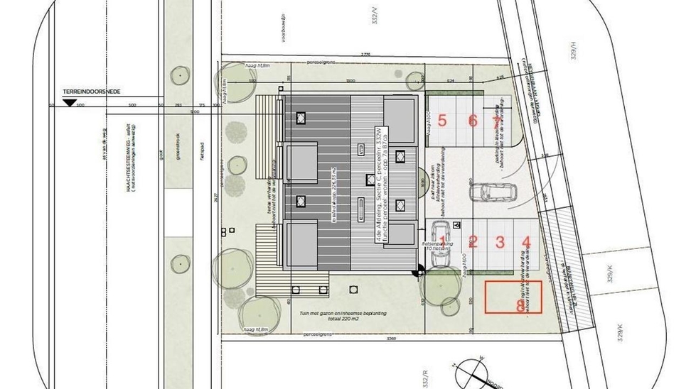
Openlucht autostaanplaats te koop in Kampenhout


Openlucht autostaanplaats te koop in Kampenhout, Neygenbaan, zijstraatje van Haachtsesteenweg.
Op deze site zijn nog 2 autostaanplaatsen beschikbaar. (nr. 5 en 6) Ze zijn naast elkaar gelegen.
Meer info via 0475/304877


Uw contact

Yannick Meys 016 84 30 30
contact

Details van het pand

Financieel

Prijs
€ 7.500,00
Onder BTW stelsel
Ja
Beschikbaarheid
Onmiddellijk

Parkeermogelijkheden

Parkings buiten
Ja

Stedenbouw

Bestemming
Niet meegedeeld
Bouwvergunning
Niet meegedeeld
Verkavelingsvergunning
Niet meegedeeld
Voorkooprecht
Niet meegedeeld
Dagvaarding
Niet meegedeeld

Meer info over deze eigendom

Bedankt voor je bericht, we contacteren je zo spoedig mogelijk.
Er was een probleem bij het versturen van het formulier, gelieve opnieuw te proberen.
U moet de algemene voorwaarden aanvaarden om dit bericht te kunnen verzenden
(*) Gelieve de verplichte velden in te vullen.