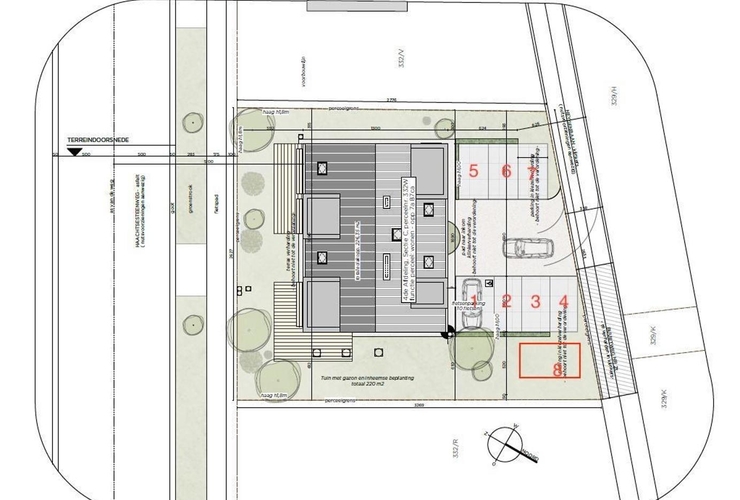
Gesloten garagebox
2870 Puurs
Op aanvraag