Appartement
€ 335.000

Wolfgang d'Urselstraat 38, 2880 Bornem
    • delen

Omschrijving Ref.: 7128252

Brouwerij Scaldis Nieuwbouw Appartement met Terras


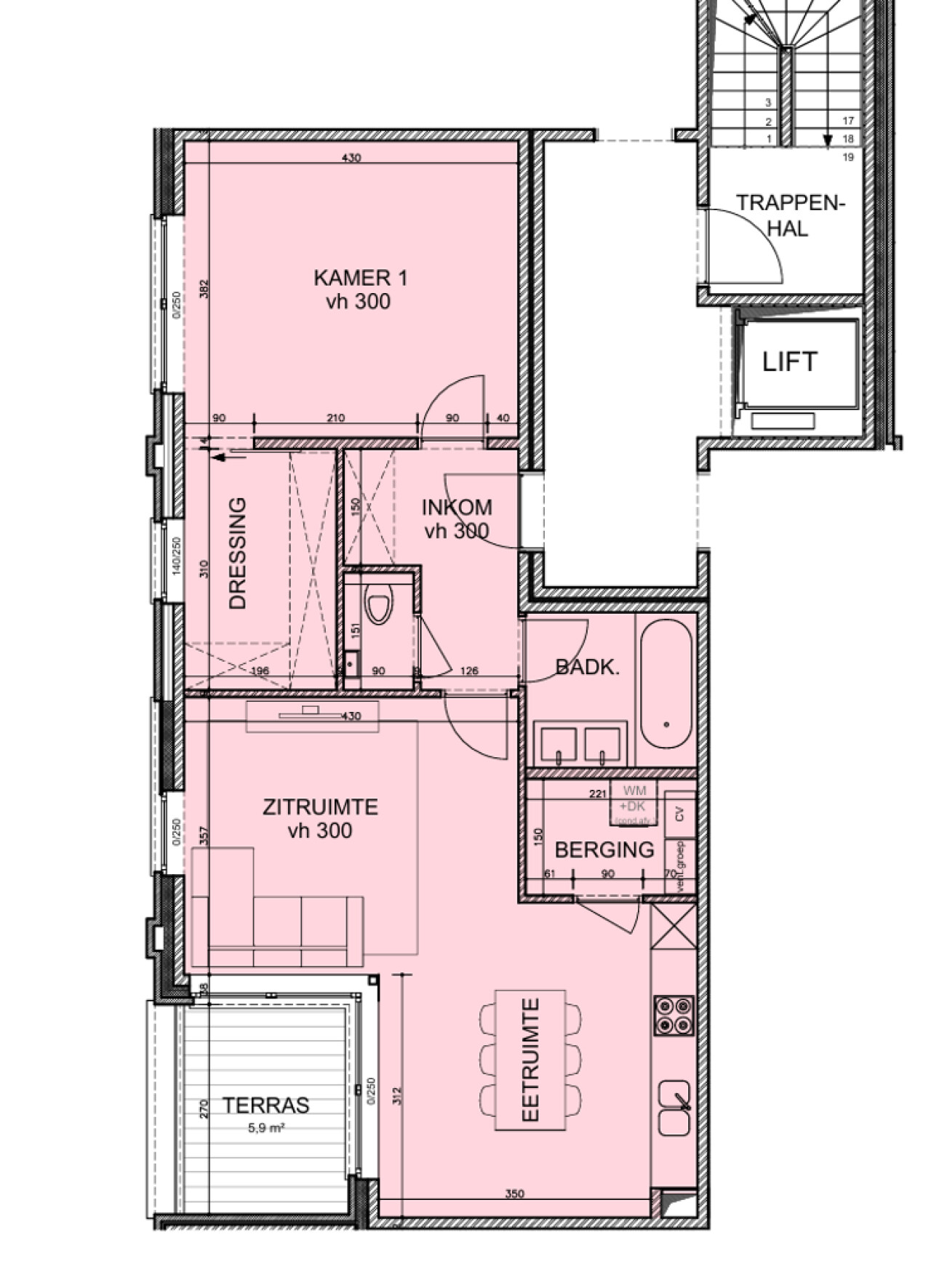
In "Brouwerij SCALDIS" wordt hier APP 8 aangeboden, gelegen in gebouw B en bestaande uit: inkomhal, leefruimte met ingerichte keuken, berging, apart toilet, 1 slaapkamer, dressingruimte en badkamer. Tevens voorzien van een terras. Het appartement wordt energiezuinig gebouwd waarbij de klant de keuze heeft in afwerking conform het lastenboek. Het grondaandeel wordt onder registratie verkocht, 6% of 21% btw (naargelang uw situatie als koper) op de constructie. Brouwerij Scaldis is een uniek project op een TOPlocatie: omgeven door groen, op enkele stappen van het park kasteel d'Ursel en op wandelafstand van het pittoreske dorp Hingene. Zeer vlotte bereikbaarheid via N16.



Het betreft hier een appartement gelegen op de tweede verdieping van gebouw B en ingedeeld als volgt:

Inkomhal: 5,4
Toilet: 1,4m²

Berging: 3,3m²
Leefruimte met ingerichte open keuken: 28,5m²
Badkamer: 4,5m²
Slaapkamer: 16,4m²
Dressing: 6m²


Deze ruimtes zijn netto gemeten, dus exclusief muren.

Terras: 5,9m² oost georiënteerd


De appartementen worden enkel verkocht in combinatie met 1 ondergrondse autostaanplaats en 1 kelderberging.
(prijs niet inbegrepen in vraagprijs appartement)



Afwerking naar keuze van de klant conform lastenboek.
Verkoop onder de Wet Breyne.
Grondaandeel wordt verkocht onder registratie, enkel btw op de constructiewaarde


Uw contact

Marie-Lynn Van Kerckhoven 03 866 30 30
contact

Details van het pand

Financieel

Prijs
€ 335.000,00
Beschikbaarheid
Bij oplevering

Ligging

Buurt
Rustig
Winkels nabij
100m
Openbaar vervoer nabij
175m

Gebouw

Bewoonbare oppervlakte
80,00 m²
Aantal gevels
2
Bouwjaar
2022
Verdiep
2
Netto oppervlakte
69,50 m²
Bruto oppervlakte
80,00 m²

Terrein

Oriëntatie terras 1
Oost

Indeling

Hal
5,40 m²
Woonkamer
28,50 m²
Keuken
Ja, geïnstalleerd
Berging
3,30 m²
Slaapkamer 1
16,40 m²
Dressing
6,00 m²
Badkamer 1
4,50 m²
Toiletten
1
Terras
5,90 m²

Comfort

Videofoon
Ja
Lift
Ja

Energie

Dubbele beglazing
Ja
Ramen
Aluminium
Type verwarming
Warmtepomp
Verwarming
Individueel

Stedenbouw

Bestemming
Niet meegedeeld
Bouwvergunning
Niet meegedeeld
Verkavelingsvergunning
Niet meegedeeld
Voorkooprecht
Niet meegedeeld
Dagvaarding
Niet meegedeeld
O-peil
Niet gelegen in een overstromingsgevoelig gebied
G-score
A
P-score
A

Meer info over deze eigendom

Bedankt voor je bericht, we contacteren je zo spoedig mogelijk.
Er was een probleem bij het versturen van het formulier, gelieve opnieuw te proberen.
U moet de algemene voorwaarden aanvaarden om dit bericht te kunnen verzenden
(*) Gelieve de verplichte velden in te vullen.